Le Grand Orgue de Saint-Sulpice

La tradition organistique de Saint-Sulpice est très ancienne. Dès le milieu du 16ème siècle on trouve la présence d'un organiste. Puis les célèbres Guillaume-Gabriel Nivers et Louis-Nicolas Clérambault se succèdent. Mais tous ces musiciens sont au service de la première église paroissiale de Saint-Sulpice. Dans l'édifice actuel, achevé mi-18ème, l'architecte Chalgrin fait ériger le monumental buffet que nous pouvons toujours admirer et dans lequel le facteur d'orgues Clicquot installe un instrument en 1781 qui, avec ses cinq claviers, ses 64 jeux, sa Montre de 32 pieds, est l'un des tout premiers orgues du Royaume avec Saint-Martin de Tours et Notre-Dame de Paris. Grâce aussi au talent de l'organiste Nicolas Séjan, cet orgue devient célèbre "du nord de l'Allemagne au sud de l'Espagne".

Au 19ème siècle c'est le grand facteur d'orgues Aristide Cavaillé-Coll qui reconstruit l'instrument en conservant de nombreux éléments de l'orgue ancien car son intention est de réaliser le "trait d'union entre l'art ancien et l'art nouveau". Le Grand-Orgue de Saint-Sulpice, l'un des trois "cent jeux" européens avec l'orgue de la Cathédrale d'Ulm (Walcker) et celui de Liverpool (Willis), devient rapidement célèbre dans le monde entier. Le Professeur Adolphe Hesse de Breslau, grand interprète de Bach, qui l'a visité peu après son achèvement, écrit: "Je dois déclarer que de tous les instruments que j'ai vus, examinés et touchés, celui de Saint-Sulpice est le plus parfait, le plus harmonieux, le plus grand et réellement le chef-d'oeuvre de la facture d'orgue moderne".

En 1863 le brillant virtuose Lefébure-Wély est nommé organiste et en 1870 c'est Charles-Marie Widor, agé seulement de 26 ans, qui lui succède. Nommé "provisoirement", il ne sera jamais titularisé au cours de ses 63 années de présence à Saint-Sulpice... Il démissionne le 31 décembre 1933 en confiant l'orgue à Marcel Dupré, une autre très grande personnalité du monde de l'orgue. Dupré meurt dans l'après-midi de la pentecôte 1971 après avoir joué les offices de la matinée. Ainsi Dupré a eu comme successeur son élève Jean-Jacques Grunenwald, un très grand musicien qui n'a malheureusement profité de ce bel instrument que pendant dix années. Ces artistes, très respectueux du chef-d'oeuvre de Cavaillé-Coll, nous ont légué un instrument de race qui, contrairement à d'autres plus ou moins défigurés au cours de la première moitié du 20ème siècle, a conservé ses caractéristiques d'origine.

En fait, il ne s'agit pas d'un instrument typiquement romantique-symphonique, comme on a coutume de le dire, mais, ainsi que son créateur l'a voulu, d'un instrument où la tradition classique et le renouveau romantique sont intimement liés!

				Daniel ROTH

English Translation:

The organ tradition of St. Sulpice dates back a long time. From the mid 16th century we can observe the presence of an organist. Then the well known Guillaume-Gabriel Nivers and Louis-Nicolas Clerambault follow. But these organists served the first parrish church of St. Sulpice. The current church building, built during the mid 18th century according to the design of the architect Chalgrin, contains the monumental organ case (also designed by Chalgrin) that we can admire to this day. This case originally contained an instrument built in 1781 by Clicquot, with five manuals, 64 stops, and a Montre of 32 ft. The organ was considered one the finest organs of the French kingdom, along with those of Saint-Martin de Tours and Notre-Dame de Paris. Thanks to the talent of its organist, Nicolas Sejan, the instrument became celebrated throughout Europe.

During the 19th century, the famous organ builder Aristide Cavaille-Coll constructed a new instrument that conserved much of the previous organ, with the intention of realizing the union of the "older art with the new." Thus the Grand-Orgue of St. Sulpice, one of the three "100 stop" European organs accompanied by Ulm Cathedral (Walcker) and Liverpool Cathedral (Willis), rapidly became admired throughout the world. Professor Adolphe Hesse of Breslau, a noted performer of Bach who had visited the organ just after its completion, wrote: "I must declare that of all of the instruments that I have seen, examined, and played, that of St. Sulpice is the most perfect, harmonious, largest, and really the master work of modern organ building."

In 1863, the brilliant virtuoso Lefebure-Wely was nominated organist. He was succeeded in 1870 by Charles-Marie Widor who was only 26 years old. Nominated with the title as a "temporary organist," he was never given the official title of "titular" during his 63 year presence at St. Sulpice! He resigned on the 31 December 1933, handing the post over to Marcel Dupre, another great figure in the organ world. Dupre died during the afternoon of the Pentecote in 1971 after playing for the mass that morning. He was succeeded by his student, Jean-Jacques Grunenwald, another great musician who would only hold the post for ten years. These artists, with high regard for Cavaille-Coll's work, had left the instrument intact; such was not the fate of many of his other instruments, which more or less have been modified during the first half of the 20th century.

In fact, this instrument should not be viewed as that of a romantic-symphonic style, which many may suggest. Instead, the creater desired an instrument where the classic tradition and the new romantic style are intimately linked!

			Daniel ROTH (translation by B. Epstein)

 

LES ORGANISTES DE ST. SULPICE

Nicolas Pescheur (mort en 1601 ou 1614)
Vincent Coppeau (ca. 1618 - ca. 1651)
Guillaume-Gabriel Nivers (ca. 1651 - 1702)
J.B. Totin (1702 - ca. 1714)
Louis-Nicolas Clérambault (1715-1749)
César François Clérambault (1749 - 1760)
Evrard Dominique Clérambault (1761 - 1773)
Claude Etienne Luce (1771 assistant to Evrard Dominique Clérambault; titulaire 1773 - 1783)
Nicolas Séjan (1783 - 1819)
Louis Nicolas Séjan (1819 - 1849)
Georges Schmitt (1850 - 1863)
Louis-James-Alfred Lefebure-Wely (1863 - 1869)
Charles-Marie Widor (1870 - 1934)
Marcel Dupré (1934 - 1971)
Jean-Jacques Grunenwald (1973 - 1982)
Daniel Roth (depuis/since 1985)

Photo of Charles-Marie Widor, ca. 1900, at the console

 


Le Grand Orgue pendant les travaux de Mutin en 1903 / The Main Organ during the work by Mutin in 1903 (photo de SPADEM)

LES FACTEURS DES GRANDES ORGUES ST. SULPICE / ORGAN BUILDERS

François-Henri Clicquot (1776 -1781)
Daublaine-Callinet (1834 - 1846)
Cavaillé-Coll (1857 - 1862)
Mutin (1903)
Société Pleyel Cavaillé-Coll (1933 - 1934)

Note Historique / Historical Note:

Centenaire du deces du facteur d'orgues Aristide Cavaille-Coll (13 octobre 1899), auteur des deux orgues de Saint-Sulpice.  En avril 1862 le Grand-Orgue de Saint-Sulpice sonne pour la premiere fois au cours des offices de Pacques samedi 19 et dimanche 20.  A mardi le 29 a lieu le concert d'inauguration avec au "quintuple" clavier: Alexandre Guilmant, Cesar Franck, C. Saint-Saens, Basille et l'organiste titulaire Georges Schmitt. La Maitrise, M. Michot, soloiste accompagnes par M. Lentz, a l'orgue de choeur, sous la direction de M. Renaud, Maitre de Chapelle participent egalement au concert.

In April 1862 the Grand Organ of Saint Sulpice sounded for the first time during the Easter services of Saturday (19th) and Sunday (20th).  The inaugural concert on the 5-manual console took place on Tuesday the 29th of April, featuring the organists: Alexandre Guilmant, Cesar Franck, C. Saint-Saens, Basille, and the titular organist Georges Schmitt.  Choral music featured a Mr. Michot as soloist, Mr. Lentz at the choir organ, and Mr. Renaud as choral director.

Gravures Historiques / Historic Engravings (kindly supplied by Karsten Unverricht of Germany)

Decoration Exterieure en Perspective / Case as viewed toward back of church (29 avril 1862)

Disposition des Claviers du Grand Orgue / Layout of console (29 avril 1862)

Plans des Différents Étages du Grand Orgue / Layouts of various levels

Sections Verticales de la Tribune et des 1ère et 2ème Étages / Vertical view of the loft and 1st and 2nd levels

Sections Verticales completes / Full Vertical cross section of instrument

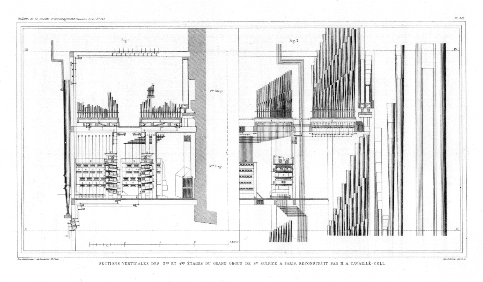
Sections Verticales des 3ème et 4ème Étages / Vertical view of the 3rd and 4th levels

Sections Verticales des 5ème et 6ème Étages / Vertical view of the 5rd and 6th levels

Console "en fenêtre" d'orgue de Callinet / "Window Style" console from Callinet instrument

Programmes Historiques de Jean Jacques Grunenwald / Historic Programs by Jean Jacques Grunenwald (Organiste de Saint Sulpice, 1973-1982) (kindly supplied by Pierre-François DUB-ATTENTI

Programs 1975

Programs 1976

Programs 1977

Programs 1978

Programs 1979

Programs 1980

Programs 1981

Programs 1982


Back to Home

modifed 7 March 2009
Callinet diagram provided by Chirstoph Heuer